The Rivergum Range

Designed for flexibility, the Rivergum offers private, lockable bedrooms with their own external access – ideal for shared worker living. With a separate kitchen, dining, and laundry hub, it gives every occupant their own space while still fostering connection. Available in multiple configurations, the Rivergum balances privacy and practicality in one smart, compact footprint.

Large Accommodation Unit

THE RIVERGUM 42.

4

2

14.4 M x 5.1 M

Up To 8 Heads On Pillows

Easy external access direct to all bedrooms

Large separate dining and kitchen area

Full-width showers to both bathrooms

Covered deck for outdoor meals and downtime.

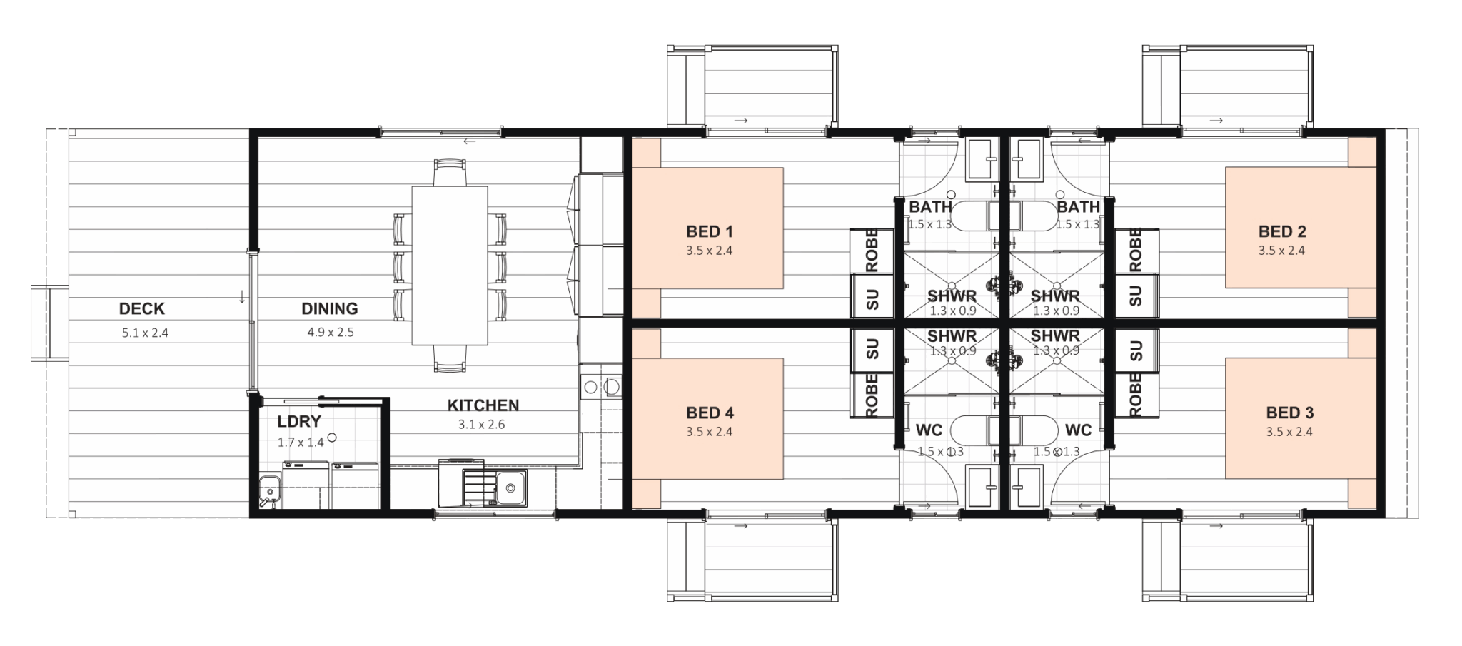
Rivergum 44 Pictorial - 01 (1)

Large Accommodation Unit

THE RIVERGUM 44.

4

4

17.4 M x 5.1 M

Up To 8 Heads On Pillows

Easy external access direct to all bedrooms

Full private ensuite for each bedroom

Large separate dining and kitchen area

Covered deck for outdoor meals and downtime.

Real Living

Why Choose Aruva?

Every Aruva design has been carefully created with a lot of attention to detail. There’s a scientific process behind it, where calculations and analysis are completed to ensure that living spaces are comfortable and functional.

Superior Accommodation Modules.

Built for the rigorous demands of country conditions but designed with modern comforts in mind.

Smart Designs.

Designed by people that understand what real living is all about.

Real Country Styling.

Add value to your property by installing accommodation units that look the part as well as play the part.

Built Tough For Life.

A superior level of inclusions provides your people with no more but no less than what they need for an enjoyable evening and a great night’s sleep.

Rapid Fulfilment.

Superior accommodation pre-made in a controlled environment for delivery at short notice. Stock readily available; in schedule now; or rapid build times.

A Sound Business Investment.

Real living solutions for real investments. An investment in your people pays the biggest dividends.

Superior Accommodation Modules.

Built for the rigorous demands of country conditions but designed with modern comforts in mind.

Smart Designs.

Designed by people that understand what real living is all about.

Real Country Styling.

Add value to your property by installing accommodation units that look the part as well as play the part.

Built Tough For Life.

A superior level of inclusions provides your people with no more but no less than what they need for an enjoyable evening and a great night’s sleep.

Rapid Fulfilment.

Superior accommodation pre-made in a controlled environment for delivery at short notice. Stock readily available; in schedule now; or rapid build times.

A Sound Business Investment.

Real living solutions for real investments. An investment in your people pays the biggest dividends.

Get A Detailed Quote Today

Take the next step today towards superior accommodation for the people you need.

We’ll make contact quickly to confirm what you need and supply an accurate quote.